Загрузка
Новинка осеннего сезона 2020 — серия небольших по площади модульных домов Ivor. Коттеджи смогут отлично вписаться в загородный ландшафт и обеспечить комфортное проживание своим владельцам на природе.
Особенность домов серии Ivor — односкатная крыша над открытой главной террасой, которая может быть прозрачной или полностью непроницаемой для прямого солнечного света.
Коттеджи Ivor представлены в трех различных планировках и цветах отделки фасада. Выбирайте вариант, который вам больше всего по душе.
Скачать pdf-презентацию коттеджа Ivor можно по ссылке.
Фасады домов серии Ivor выполнены из природных материала — древесины, тонированной в выбранный дизайнерам цвет для каждой модели. Мы предлагаем три базовых цветовых сценария для фасада: более спокойные натуральные оттенки, контрастное сочетание цветов и тонировка деревянных реек в синий цвет.
Индивидуальность серии Ivor придают окна в английском стиле. Большие панорамные стекла с имитацией разделения на небольшие сегменты смотрятся актуально и подчеркивают общее настроение уютного дома для отдыха.
Особенностью интерьерного дизайна серии домов Ivor является большое количество окон, что увеличивает количество дневного света внутри коттеджа. У нас есть модели домов с панорамными и угловыми окнами.
Внутренние планировки различаются наличием теплого входного тамбура, размещением мебели в кухне-гостиной и размером спальной зоны, которая может иметь собственную небольшую террасу.
Площадь дома
41.04 м²
Размеры
11,4 х 6,5 м
Площадь открытых террас
25,0 м²
Комнаты
Прихожая, спальня, санузел, кухня-гостиная
Количество спален
1
Спецификации
|
Optima |
цена по запросу |
Скачать спецификацию |
|
Comfort |
цена по запросу |
Скачать спецификацию |
Дом модели Ivor 01. — это максимальная функциональность на площади около 41 м².
В доме есть полноценная спальня, гостиная, совмещенная с открытой кухней, и санузел. Большая терраса площадью 25 м² прекрасно подойдет для приятного отдыха на природе.
Деревянный навес и крыша из поликарбоната пропускают солнечный свет, сохраняя единение с природой.
Площадь дома
45.7 м²
Размеры
11,4 х 6,5 м
Площадь открытых террас
19,0 м²
Комнаты
Прихожая, спальня, санузел, тамбур, кухня-гостиная
Количество спален
1
Спецификации
|
Optima |
цена по запросу |
Скачать спецификацию |
|
Comfort |
цена по запросу |
Скачать спецификацию |
У модели Ivor 02. увеличено количество оконных проемов. Панорамное окно в гостиной позволит наслаждаться природой и окружающими видами. Угловое окно в спальне создаст ощущение простора.
Особенность модели — это наличие тамбура, который сохранит тепло в вашем доме в холодные месяцы и защитит от уличной грязи. В нем удобно хранить необходимые вещи.
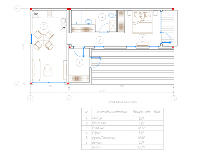
Площадь дома
48.97 м²
Размеры
11,4 х 6,5 м
Площадь открытых террас
19,0 м²
Комнаты
Прихожая, спальня, санузел, тамбур, кухня-гостиная, балкон
Количество спален
1
Спецификации
|
Optima |
цена по запросу |
Скачать спецификацию |
|
Comfort |
цена по запросу |
Скачать спецификацию |
Сама просторная модель серии домов Ivor. В ней мы увеличили площадь кухня и гостиной, что удобно, когда собирается большая компания.
Дополнительная терраса, расположенная рядом со спальней, станет вашим уютным приватным уголком.